Dwv Meaning Plumbing . It is a crucial part of plumbing dealing with the. It is the system that allows the used water and sewage from the building to flow out. Dwv stands for drainage, waste, and venting. The dwv system is a fundamental part of plumbing that serves three primary purposes: Dwv stands for drain, waste, and vent, and it is a crucial plumbing system used in residential and commercial buildings. The purpose of the dwv system is to remove. It facilitates the removal of wastewater and sewage from. • drain pipes collect water from sinks, showers, and tubs, •.
from www.chegg.com
It facilitates the removal of wastewater and sewage from. Dwv stands for drain, waste, and vent, and it is a crucial plumbing system used in residential and commercial buildings. It is the system that allows the used water and sewage from the building to flow out. The dwv system is a fundamental part of plumbing that serves three primary purposes: • drain pipes collect water from sinks, showers, and tubs, •. The purpose of the dwv system is to remove. Dwv stands for drainage, waste, and venting. It is a crucial part of plumbing dealing with the.
Solved Show your design, plan, estimates of materials of the
Dwv Meaning Plumbing It is the system that allows the used water and sewage from the building to flow out. • drain pipes collect water from sinks, showers, and tubs, •. It facilitates the removal of wastewater and sewage from. It is a crucial part of plumbing dealing with the. It is the system that allows the used water and sewage from the building to flow out. Dwv stands for drain, waste, and vent, and it is a crucial plumbing system used in residential and commercial buildings. The purpose of the dwv system is to remove. The dwv system is a fundamental part of plumbing that serves three primary purposes: Dwv stands for drainage, waste, and venting.
From www.britannica.com
Plumbing Definition & Meaning Britannica Dictionary Dwv Meaning Plumbing Dwv stands for drainage, waste, and venting. The purpose of the dwv system is to remove. It facilitates the removal of wastewater and sewage from. It is a crucial part of plumbing dealing with the. The dwv system is a fundamental part of plumbing that serves three primary purposes: Dwv stands for drain, waste, and vent, and it is a. Dwv Meaning Plumbing.
From www.chegg.com
Solved Show your design, plan, estimates of materials of the Dwv Meaning Plumbing The purpose of the dwv system is to remove. It facilitates the removal of wastewater and sewage from. It is the system that allows the used water and sewage from the building to flow out. The dwv system is a fundamental part of plumbing that serves three primary purposes: It is a crucial part of plumbing dealing with the. •. Dwv Meaning Plumbing.
From danieljduvallxo.blob.core.windows.net
Washing Machine Under Sink Waste Connection Dwv Meaning Plumbing Dwv stands for drainage, waste, and venting. • drain pipes collect water from sinks, showers, and tubs, •. The purpose of the dwv system is to remove. It facilitates the removal of wastewater and sewage from. It is a crucial part of plumbing dealing with the. The dwv system is a fundamental part of plumbing that serves three primary purposes:. Dwv Meaning Plumbing.
From www.danco.com
What is the DWV System and Why Should I Care? Danco Dwv Meaning Plumbing The purpose of the dwv system is to remove. • drain pipes collect water from sinks, showers, and tubs, •. Dwv stands for drainage, waste, and venting. The dwv system is a fundamental part of plumbing that serves three primary purposes: It is the system that allows the used water and sewage from the building to flow out. It facilitates. Dwv Meaning Plumbing.
From up.codes
Chapter 11 Sanitary Drainage Systems, New Jersey Plumbing Code 2021 Dwv Meaning Plumbing Dwv stands for drainage, waste, and venting. • drain pipes collect water from sinks, showers, and tubs, •. Dwv stands for drain, waste, and vent, and it is a crucial plumbing system used in residential and commercial buildings. The dwv system is a fundamental part of plumbing that serves three primary purposes: The purpose of the dwv system is to. Dwv Meaning Plumbing.
From www.youtube.com
The 1 DWV Plumbing Mistake (and how to prevent it). YouTube Dwv Meaning Plumbing It facilitates the removal of wastewater and sewage from. The purpose of the dwv system is to remove. • drain pipes collect water from sinks, showers, and tubs, •. It is a crucial part of plumbing dealing with the. The dwv system is a fundamental part of plumbing that serves three primary purposes: Dwv stands for drain, waste, and vent,. Dwv Meaning Plumbing.
From life-improver.com
Plumbing Horizontal Drains Can Combine Through Wye Laying Flat, Or Dwv Meaning Plumbing • drain pipes collect water from sinks, showers, and tubs, •. It is a crucial part of plumbing dealing with the. The dwv system is a fundamental part of plumbing that serves three primary purposes: It is the system that allows the used water and sewage from the building to flow out. Dwv stands for drain, waste, and vent, and. Dwv Meaning Plumbing.
From www.davidmoss.com.au
DWV Sewer Pipe & Fittings Dwv Meaning Plumbing Dwv stands for drainage, waste, and venting. It is a crucial part of plumbing dealing with the. It is the system that allows the used water and sewage from the building to flow out. Dwv stands for drain, waste, and vent, and it is a crucial plumbing system used in residential and commercial buildings. • drain pipes collect water from. Dwv Meaning Plumbing.
From www.pinterest.com
What the DWV Means and More about these Systems System architecture Dwv Meaning Plumbing The purpose of the dwv system is to remove. It is the system that allows the used water and sewage from the building to flow out. The dwv system is a fundamental part of plumbing that serves three primary purposes: • drain pipes collect water from sinks, showers, and tubs, •. Dwv stands for drainage, waste, and venting. Dwv stands. Dwv Meaning Plumbing.
From mpi.moldex.com.ph
DWV Sanitary Piping Systems — MOLDEX PRODUCTS, INC. Philippines Dwv Meaning Plumbing It is a crucial part of plumbing dealing with the. The dwv system is a fundamental part of plumbing that serves three primary purposes: Dwv stands for drain, waste, and vent, and it is a crucial plumbing system used in residential and commercial buildings. Dwv stands for drainage, waste, and venting. • drain pipes collect water from sinks, showers, and. Dwv Meaning Plumbing.
From www.studocu.com
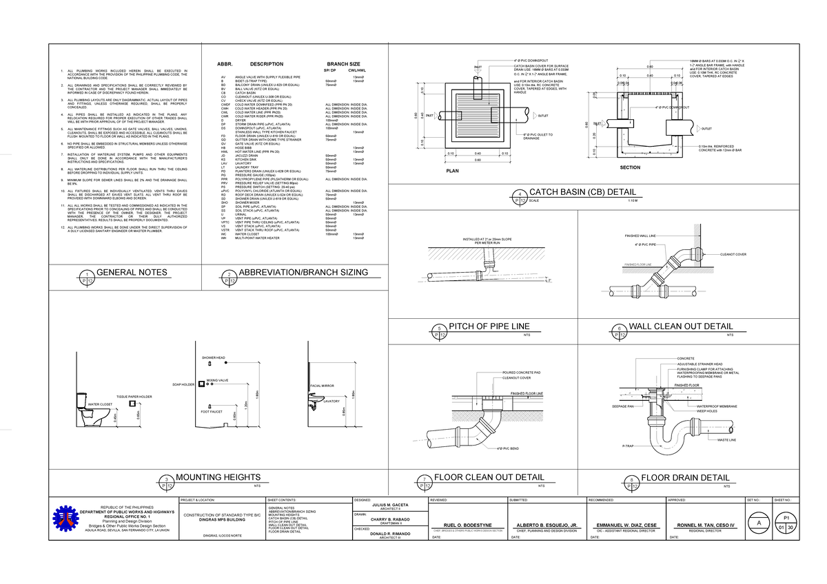
4 MPS Building Dingras Plumbing drawings DS 1. ALL PLUMBING WORKS Dwv Meaning Plumbing Dwv stands for drain, waste, and vent, and it is a crucial plumbing system used in residential and commercial buildings. The purpose of the dwv system is to remove. • drain pipes collect water from sinks, showers, and tubs, •. It facilitates the removal of wastewater and sewage from. It is a crucial part of plumbing dealing with the. The. Dwv Meaning Plumbing.
From www.architectureadrenaline.com
Plumbing Vent Diagram Understanding the Basics Architecture Adrenaline Dwv Meaning Plumbing It is the system that allows the used water and sewage from the building to flow out. The dwv system is a fundamental part of plumbing that serves three primary purposes: Dwv stands for drainage, waste, and venting. It facilitates the removal of wastewater and sewage from. Dwv stands for drain, waste, and vent, and it is a crucial plumbing. Dwv Meaning Plumbing.
From houseplannarrowlot.blogspot.com
22+ DWV Plumbing Diagrams Dwv Meaning Plumbing The dwv system is a fundamental part of plumbing that serves three primary purposes: The purpose of the dwv system is to remove. It facilitates the removal of wastewater and sewage from. It is the system that allows the used water and sewage from the building to flow out. Dwv stands for drain, waste, and vent, and it is a. Dwv Meaning Plumbing.
From www.edrawsoft.com
Plumbing & Piping Plan The Complete Guide EdrawMax Dwv Meaning Plumbing It is the system that allows the used water and sewage from the building to flow out. The dwv system is a fundamental part of plumbing that serves three primary purposes: It facilitates the removal of wastewater and sewage from. Dwv stands for drain, waste, and vent, and it is a crucial plumbing system used in residential and commercial buildings.. Dwv Meaning Plumbing.
From wireengineaphorising.z14.web.core.windows.net
Plumbing Vent Stack Diagram Dwv Meaning Plumbing The dwv system is a fundamental part of plumbing that serves three primary purposes: Dwv stands for drainage, waste, and venting. The purpose of the dwv system is to remove. It is the system that allows the used water and sewage from the building to flow out. It is a crucial part of plumbing dealing with the. It facilitates the. Dwv Meaning Plumbing.
From engineeringunits.com
More Than 300 Piping, Plumbing Abbreviation Full List Dwv Meaning Plumbing It facilitates the removal of wastewater and sewage from. The dwv system is a fundamental part of plumbing that serves three primary purposes: It is the system that allows the used water and sewage from the building to flow out. It is a crucial part of plumbing dealing with the. Dwv stands for drain, waste, and vent, and it is. Dwv Meaning Plumbing.
From www.pinterest.com
Pin on Products Dwv Meaning Plumbing It is the system that allows the used water and sewage from the building to flow out. It is a crucial part of plumbing dealing with the. Dwv stands for drain, waste, and vent, and it is a crucial plumbing system used in residential and commercial buildings. • drain pipes collect water from sinks, showers, and tubs, •. The purpose. Dwv Meaning Plumbing.
From www.holmanindustries.com.au
DWV PVC BEND F&F PLAIN Fittings Holman Industries Dwv Meaning Plumbing Dwv stands for drain, waste, and vent, and it is a crucial plumbing system used in residential and commercial buildings. • drain pipes collect water from sinks, showers, and tubs, •. It is a crucial part of plumbing dealing with the. The purpose of the dwv system is to remove. Dwv stands for drainage, waste, and venting. The dwv system. Dwv Meaning Plumbing.